
Visaton TL-Sub MK II
Ich hatte schon sehr lange mit dem Gedanken gespielt, mir einen 2. TL-Sub zu bauen, um noch mehr Pegel fahren zu können bei Filmen. Dann entdeckte ich im Visaton-Forum eine Simulation von 'zx-limited', der mit AJHorn 6 eine Transmissionline mit nur einem Kanal, und den aktuellen TIW 300 Chassis von Visaton simuliert hat. Den Simulationsdaten zu Folge sollte der neue bei 16Hz 130dB können - das klang nach etwas was ich haben will.
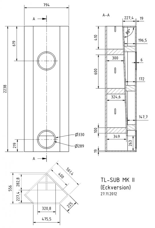
Der vorgegebene Bauvorschlag war mit einem rechteckigen Gehäuse - das gefiel mir nicht. Also rechnete ich ein Weilchen rum und stellte fest, das der neue TL-Sub bis auf den cm² den gleichen Innenquerschnitt hat wie der alte. lediglich der Innenaufbau mit dem schrägen Trennbrett und der unterschiedlichen Positionierung der Chassis unterscheidet sich dann von der originalen 5-Eck Version. Mittlerweile ist meine Version bei den 'Neuen Bauvorschlägen und Modifikationen' im Visaton-Forum angekommen und es gibt eine offizielle Bauzeichnung dafür die ich euch nicht vorenthalten will. EInen Dicken Dank an dieser Stelle nochmals an die Firma VISATON!
Zuschnitte:
2x 52,3x52,3cm Boden und Deckel:
1x 224x52,3cm links hinten
1x 224x54,2cm rechts hinten
2x 224x22,5cm Seiten
1x 224x48cm Front
1x 194x74cm Trennbrett
Die ganzen Streben sind alle aus Resten gemacht, sind 10cm breit bei mir, Maße könnt ihr der Zeichnung entnehmen.



Sieht kompliziert aus? Ist es auch. Aber durch weglassen möglichst
vieler Gehrungen und Entfall des 2. Trennbretts und der unteren
Umlenkung ist er einiges leichter zu bauen als der Alte.

Auf gehts zum Baumarkt, zig m² 19er MDF holen.

Als erstes fange ich mit dem Boden und Deckel an auf Maß zu sägen.

Jetzt kann man die Rückseiten auf Stoß verleimen und Boden und Deckel
anbauen. Ich habe hier mit 4x40er SPAX Schrauben gearbeitet um das
lästige Verzwingen zu sparen, die Rückseite sieht man ja nicht.

Dann gehts an das Schwierigste, die schräge Trennwand. Haltet euch da
an obige Zeichnung. Um den Winkel genau einzustellen habe ich mehrere
Probeschnitte in Restholz gemacht. Die langen Seiten dienen als
Anschlagschiene für die Kreissäge, damit der Schnitt wirklich exakt
gerade wird. Wer ne Schiene sein Eigen nennt, umso besser.

Hier sieht man wie die Trennwand nach unten schmaler wird. Ist nicht sehr viel, aber nötig.

Für die weiteren Arbeitsschritte habe ich mir aus Restholz Halter gebaut, um den Sub auf die Ecke stellen zu können.

So läßt es sich dann im weiteren Verlauf prima arbeiten.

Trennwand paßt perfekt rein. Die kleine Schräge zum Deckel hin habe ich mit Flex und 40er Schleifscheibe gemacht.

Bevor nun die Trennwand verklebt wird, sollten noch einige Streben
gesetzt werden.Die Position ist dabei zweitrangig. Die Kanten habe ich
vur Vorbeugung von Strömungsgeräuschen abgerundet.Die Schraubzwinge
hält die Brett auf Maß.

Alles verklebt. Auch hier habe ich zusätzlich mit Schrauben fixiert.
Zum Verkleben von allen Sachen, die nicht so 100% lückenlose Passung
sind und vor allem nicht wirklich fixierbar sind, verwende ich
Montagekleber, mein Favorit ist da mittlerweile 'OTTO Coll Rapid', ist
auf PU Basis, schäumt etwas auf und füllt so auch größere Spalte.
Härtet wie der Name schon sagt recht schnell aus und hält Bombe auch
auf vielen anderen Materialien.

Kleber großzügig an der vorher angezeichneten Position auftragen

Und die Kanten nochmal ordentlich verstreichen. Die Streben für den
Deckel habe ich grob auf Länge geschnitten und VOR dem Verleimen von
hinten ans Trennbrett geschraubt + geleimt. Beim Anpassen an die
Positionen der Chassis denken!

Um die Front ordentlich zu furnieren, benötige ich 2 Blätter, die
gespiegelt aufgeleimt werden. Mann klappt dazu den Furnierstapel wie
ein Buch auf, so das man 2 fast identische Hälften hat. Diese presse
ich zwischen 2 geraden Brettern (den Seitenwänden) zusammen und fräse
die Kante mit dem Bündigfräser gerade.

Dann kann man die beiden Hälften mit Klebeband von vorne fixieren. Es
gibt spezielles Furnierband, Kreppband tuts aber auch. Ja nicht auf die
Idee kommen das von hinten zu kleben, den Fehler hab ich gemacht.

Nun wird das Furnier und die Front mit Holzleim eingestrichen (ich
verwende dazu eine kleine Schaumstoffrolle) und mit so vielen dicken
Platten und Schraubzwingen verpreßt wie nur geht. Vorher am besten
testen, das sich der Kleber nicht ins Holz setzt beim Pressen.

Die überstehenden Seiten bügle ich um und trenne die vorsichtig mit Schleifpapier ab.

Nachdem die Seiten auf die gleiche Weise wie das Trennbrett mit einer Gehrung ausgestattet sind werden sie verleimt.


Die 2. Seite.

Um jetzt die Streben auf 100% passende Länge zu bekommen, bediene ich
mich der Oberfräse. Ich lege ein stabiles und gerades Brett über die
Kanten und stelle die Frästiefe so ein, das der Fräser gerade so auf
Boden bzw Deckel aufliegt.
Dann schiebe ich das Brett weiter und fräse das überschüssige Material
an den Streben einfach ab. Bloß nicht das Brett durchbiegen!

Nun wird die Front verleimt. Mangels großer Schraubzwingen verwende ich
hier ausschließlich Montagekleber und beschwere die Front mit allerlei
Zeugs was noch so rumliegt wie meinen Schraubensammel-Schubladen :) da
liegen insgesamt ca. 100kg drauf. Wenn das trocken ist, werden alles
überstehenden Kanten mit dem Bündigfräser begradigt und der Sub
komplett mit Exzenterschleifer und 120er Papier geschliffen.

Nun werden die Seiten furniert, hier wird wieder eingeleimt und gepreßt, Kanten gebügelt und abgeschliffen.

An den entsprechenden Positionen werden jetzt mittels Oberfräse und
Fräszirkel die Löcher für die Chassis gefräst. Danach schleife ich das
komplette Gehäuse mit Exzenterschleifer und 120/240er Papier.

Dann wird lackiert. Wenn jetzt noch Stellen hochkommen, kann man die
mit einem Bügeleisen wieder festbügeln, schleifen und bei der 2.
Schicht neu lackieren.

Bereit zum Transport!

Das Anschlußterminal ist in eine der Rückseiten eingelassen. Ich gönne jedem Chassis später einen eigenen Verstärkerkanal.

Das Kabel fixiere ich mit Heißkleber damit später nix klappert.

Einzug der TIWs.


Kurzer Vergleich mit dem alten TL-Sub. Der neue ist mit 2,24m nochmals 9cm höher, ansonsten hat er identische Außenmaße.

Genauso dezent versteckt wie das Original.
Tja, was soll ich sagen? Der neue TL-Sub kann einfach alles besser als der alte, er geht bedeutend tiefer, etliches lauter und ist dabei noch präziser als der alte. Wer also noch nen ungenutzten halben m³ Wohnraum in der Zimmerecke frei hat, weiß, was er sich da hinstellen kann. Filmempfehlungen um den neuen richtig auszuspielen: Krieg der Welten, da kann ich jetzt 6dB lauter drehen als vorher und habe insgesamt sicher 12-15dB bei den ganz tiefen Sachen unter 20Hz. Da würden 2 der alten definitiv nicht mitkommen. Auch immer wieder nett: Titan A.E., #9, oder aktueller, Total Recall und Star Trek 11 forden den neuen mal so richtig.
Weil der eine so viel Spaß macht, hab ich mir dann 2 Jahre später einen 2. gebaut :)











Mit 2en wird das ganze noch mal lockerer und ansatzloser, und dem Maximalpegel sind quasi keine Grenzen mehr gesetzt...